Breadcrumbs

Large water content (direct)

The templates consist of various configurations for large water content boilers.

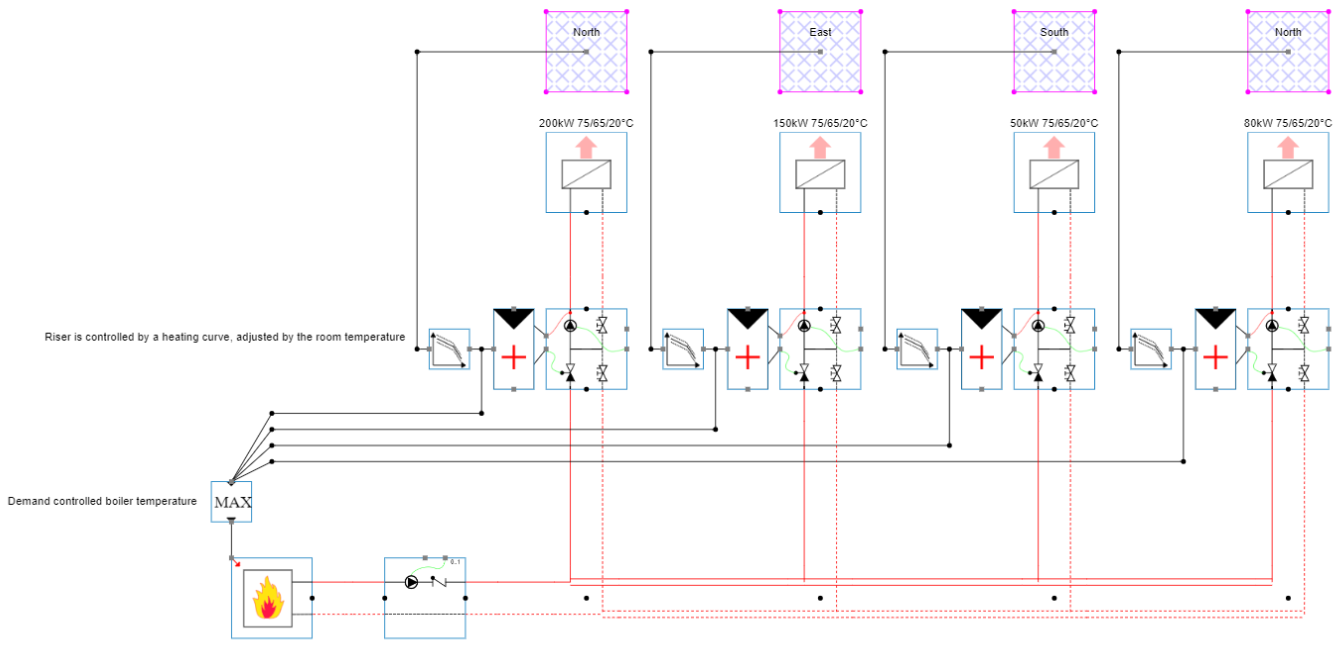
Boiler - Large water content - Active mixing

image-20191209-143542.png

The boiler in this example is demand-controlled, more information on this control strategy can be found in New Wiki - Basic boiler controls . Furthermore, the distribution circuit of every branch is an active mixing, which means no primary pump is needed. The boiler requires a large water content because the flow through the boiler is variable and in partial load, this can be nearly zero. Templates for boilers with small water content can be found in Small water content (low loss header) and Header configuration .

More information on boilers and distribution circuits can be found in Boilers and Distribution circuits .

Boiler - Large water content - Passive mixing

image-20191209-143602.png

This template is similar to the previous template “Boiler - Large water content - Active mixing“, except for the passive mixing circuits instead of the active mixing circuits. Because a passive mixing circuit is used, a pump is needed. In this case, both boiler and pump can handle a nearly zero flow rate. If this is not the case, templates with minimum flow protection can be found in Header configuration .

More information on boilers and distribution circuits can be found in Boilers and Distribution circuits .

Boiler - Large water content - Variable flow

image-20191209-143629.png

This template is similar to the previous template “Boiler - Large water content - Passive mixing“, except for the throttle valves instead of the passive mixing circuits. Throttle valves can't be controlled to change the supply temperature, but control the flow rate. In this case, both boiler and pump can handle a nearly zero flow rate. If this is not the case, templates with minimum flow protection can be found in Header configuration .

More information on boilers and distribution circuits can be found in Boilers and Distribution circuits .