Breadcrumbs

Production Templates - Cooling

The ‘Cooling’ templates consist of different configurations for chillers and their storage vessel.

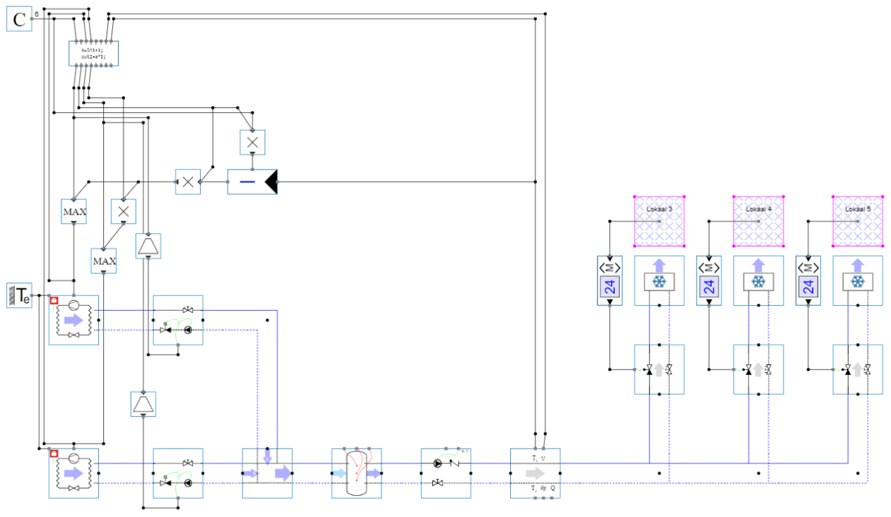
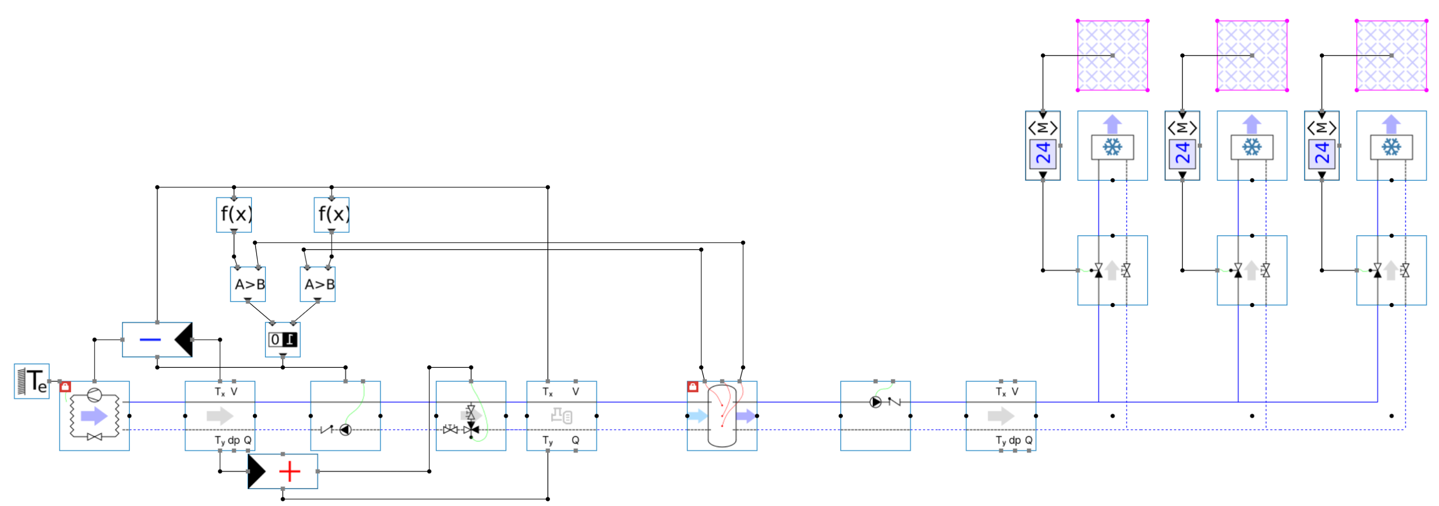
Chiller with storage tank - Chiller modulation with constant flow.

Working principle

This simple control strategy consists of two parts. The activation/deactivation of the chiller and the modulating chiller of the heat pump.

image-20240122-135657.png

Controls

Activation/Deactivation

The chiller is activated and deactivated based on the temperature in the thermal store. The activation of the chiller compares the temperature in the thermal store at the level of the supply connection with the design supply temperature. The deactivation of the chiller compares the temperature in the thermal store at the level of the return connection with the design return temperature. Both the modulation controller as the pump are activated/deactivated.

Chiller modulation

The modulation of the chiller is based on the measured supply temperature of the chiller. The position of the three-way valve in the return is based on the measured return temperature of the chiller. As the return rises above the design return temeprature, the I-action of the P&ID controller will reduce the controller’s output signal. This will result in mixing colder water back to the return pipe, reducing the return temperature.

Notices/Remarks

  • There are default EER and power tables for the chiller, but these can be changed by the user.

  • Make sure to fill in the compressor configuration in the chiller block. As minimum modulation plays a major role in determining the start-stops of the chiller.

  • The user can change the design temperatures, thermal power, end units, … But keep in mind that the controls have to be changed as well. This can be done by changing the setpoint values.

  • If the user changes the power of the end units, the thermal capacity of the chiller doesn’t change automatically. The user should implement a correct evaporator capacity corresponding with the thermal power of the evaporator.

image-20240122-132159.png











Chiller - Cascade of 2 chillers - Parallel storage tank - Chiller modulation

image-20191210-085943.png

Working principle

The programmable controller controls the enabling and disabling of the chillers in the cascade. Based on the flow temperature setpoint, volume flow rate and an activation threshold, the first chiller is enabled. The second chiller is enabled if the previous chiller is working above 60% modulation for a specific time span and if the setpoint flow temperature isn’t reached. Disabling the chillers is based on a deactivation threshold when the setpoint flow temperature is reached. The chiller will always scale up and down in the same order, e.g. enabling 1-2 and disabling 2-1.

Controls

The following settings can be changed by the user in the programmable controller:

  • ActivationChiller1 = 300;
    (= the threshold amount when the flow temperature is to low before activation of chiller 1, in Kelvin seconds)

  • DeactivationChiller1 = 1800;
    (= the threshold amount when the flow temperature is too high before deactivation of chiller 1, in Kelvin seconds)

  • ActivationChiller2 = 3600;
    (= the threshold amount when the flow temperature is to low before activation of chiller 2, in Kelvin seconds)

  • DeactivationChiller2 = 1200;
    (= the threshold amount when the flow temperature is too high before deactivation of chiller 2, in Kelvin seconds)

  • MinFlow = 0.1;
    (= the minimal flow rate through one chiller, in m³/h)

  • SwitchTemperature = 1;
    (= the switch temperature for the upper and lower limit, in Kelvin)

  • MinModulation = 0.2;
    (= the minimal modulation for both chillers)

  • MaxModulation = 0.6;
    (= the maximal modulation for the first chiller before the second one is activated)

  • ReleaseModulation = 180;
    (= the time delay after activation of a chiller before modulating the chillers, in seconds)

Notices/Remarks

  • There are default EER and power tables for the chiller, but these can be changed by the user.

  • The user can change the design temperatures, thermal power, end units, … But keep in mind that the controls have to be changed as well. This can be done by changing the setpoint values.

  • If the user changes the power of the end units, the thermal capacity of the chiller doesn’t change automatically. The user should implement a correct evaporator capacity corresponding with the thermal power of the evaporator.

Chiller - Cascade of 2 chillers - Parallel storage tank - Chiller with 2 stages

image-20191210-090007.png

This template is a combination of the previous template “Chiller - Cascade of 2 chillers - Parallel storage tank - Chiller modulation” and Heat Pump stages .

Chiller - Cascade of 2 chillers - Serial storage tank - Chiller with 2 stages

image-20191210-090029.png

This template is the same as “Chiller - Cascade of 2 chillers - Parallel storage tank - Chiller with 2 stages”, except for the storage tank. In this template, a serial storage tank is used instead of a parallel storage tank.